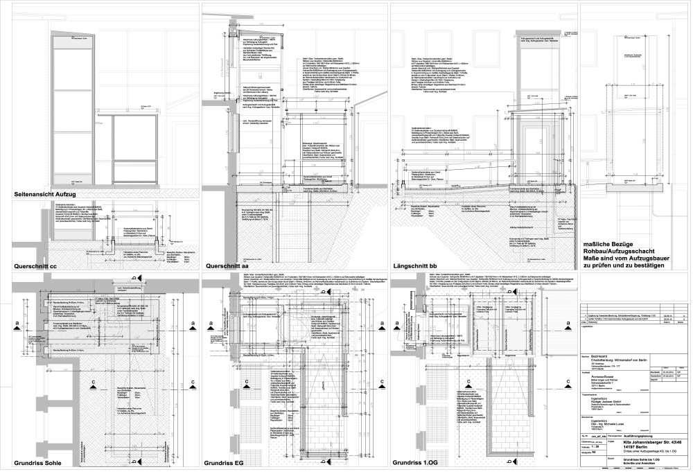
Kita Johannisberger Straße Schul- und Kitabauten Johannisberger Straße 43/46 in 14197 Berlin ← → Bauherr Bezirksamt Charlottenburg-Wilmersdorf von Berlin Planung 2011 bis 2014 Leistungsphasen 3 bis 8 Baukosten KG 300+400 =300.000 T € brutto Maßnahmen Erneuerung Sanitäranlagen, Einbau Behinderten gerechtes WC, Anbau Aufzug außen